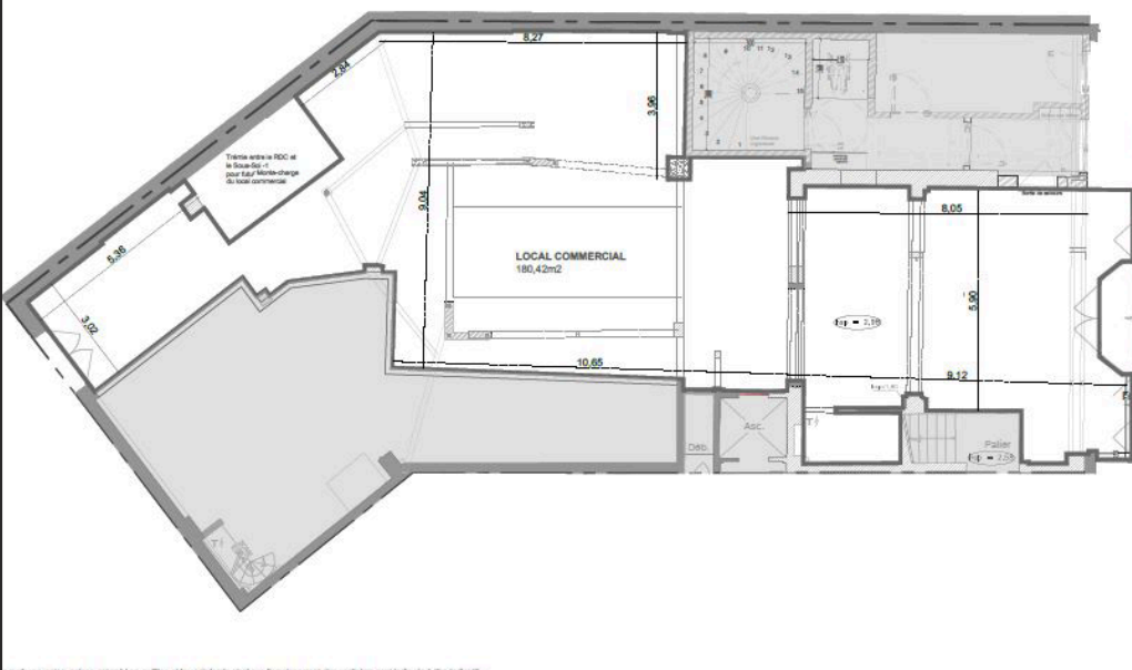
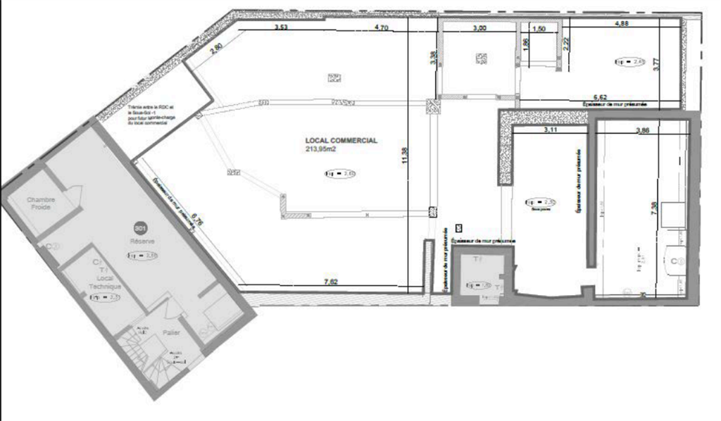
Le groupe Vignon Retail vous propose en location pure ce magnifique local commercial situé sur le boulevard Grenelle Paris 15 eme.
Ce local dispose d’une surface de vente de 180 m2 en RDC ainsi que 214m2 en sous-sol exploitable. Ce local possède Une extraction de 600 mm Ce local dispose d’une belle façade d’environ 10 mètres .
Il est à proximité immédiate du metro la Motte piquet Grenelle ainsi que des bars tabac, commerces, brasserie, boulangerie etc . …
Loyer annuel : 200 000 € HT-HC








